Detalles de la Obra
CIUDAD DE YOUNG
Obras para mejorar la infraestructura del cementerio de la ciudad de Young.
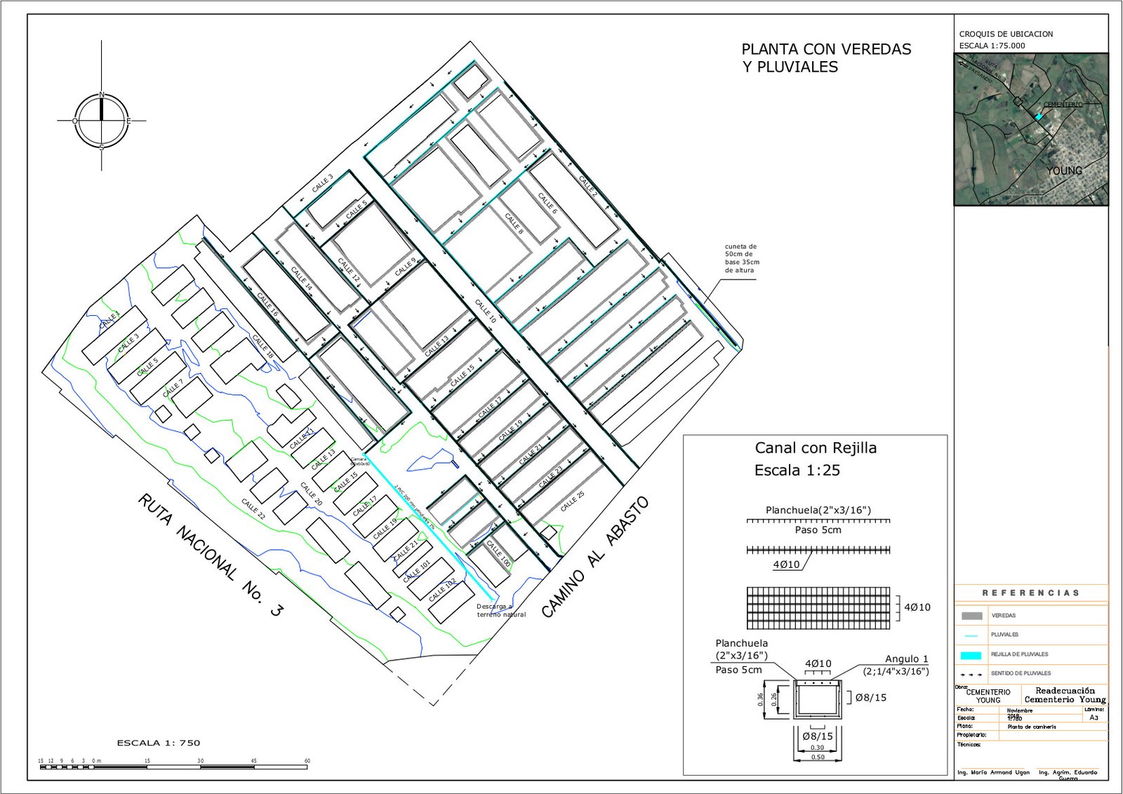
Comprende la evacuación de pluviales, reconformación de calles internas, y realización de veredas perimetrales, con la finalidad de unificar y mejorar la situación actual.
Solucionar la problemática de la escorrentía de aguas pluviales que al no estar definida sigue directamente hacia los panteones provocando ingreso a los mismos. Esto está directamente relacionado a que las calles no cuentan con una correcta conformación, teniendo pendientes transversales casi nulas en la mayoría de los casos.
A su vez en algunos casos se cuenta con vereda para circulación peatonal, o bien para poner las flores u ofrendas. Se desea mejorar esa infraestructura, y agregar a la mayor parte del sector considerado una vereda perimetral de 50 cm de ancho de hormigón.
