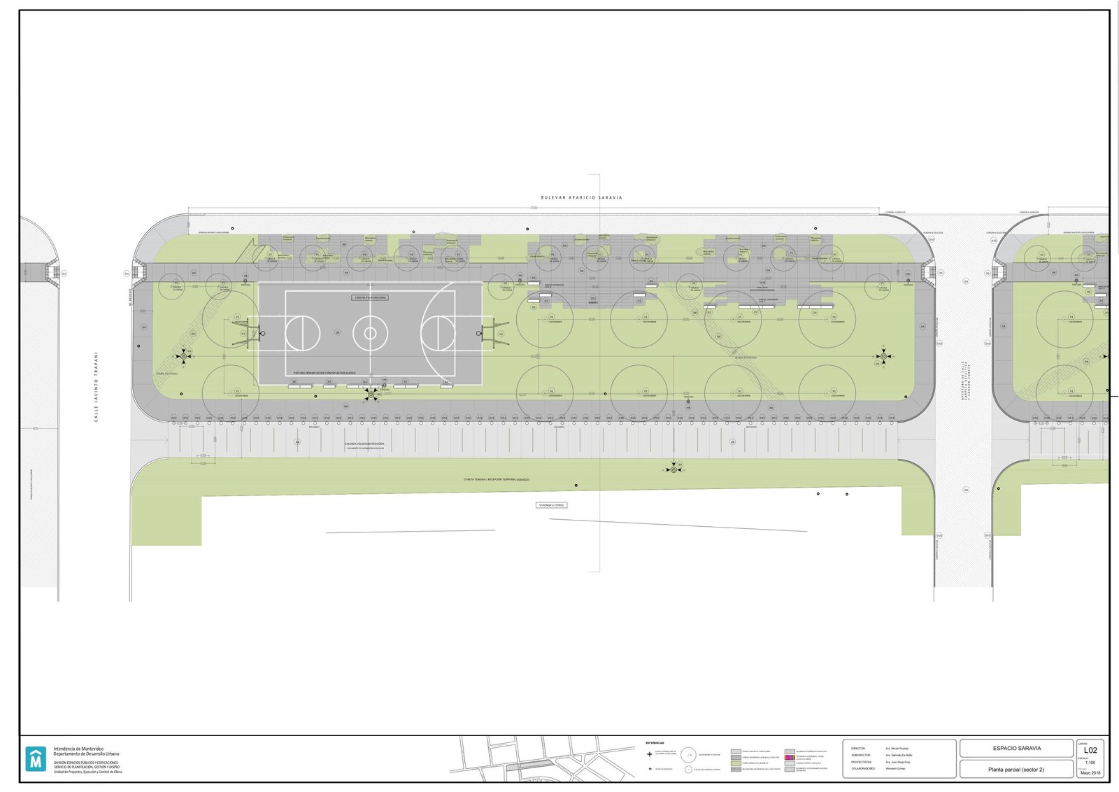
Plaza Espacio Aparicio Saravia Detalles de la Obra CONTRATANTE INTENDENCIA DE MONTEVIDEO Construcción de pavimentos de hormigón lustrado, herrería, pavimentos deportivos, calles de asfalto, pluviales, iluminación exterior y obras accesorias, jardinería y colocación césped. Viviendas 0 Galería de Imágenes TODAS PLANOS OBRA